LOGIN
HOME
CATEGORIES
UPLOAD FILE
PRICING
HOUSE PLAN
ABOUT US
CONTACT US
Hotel plans
Home
Categories
Architecture
Hotels and Restaurants
Hotel plans
Uploaded by:
Eiz
Luna
View Profile
View Profile
Description
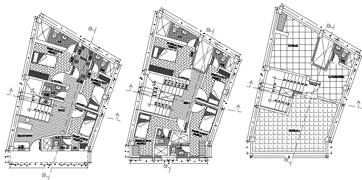
Hotel plans in AutoCAD which shows the details of the hall, reception area, rooms, kitchen, washroom, parking area, lawn area, etc, it also provides the details of floor level.
File Type:
DWG
File Size:
10.8 MB
Category::
Architecture
Sub Category::
Hotels and Restaurants
type:
Gold
Uploaded by:
Eiz
Luna
View Profile
Download
Add to libary
find Latest
Related
Files