LOGIN
HOME
CATEGORIES
UPLOAD FILE
PRICING
HOUSE PLAN
ABOUT US
CONTACT US
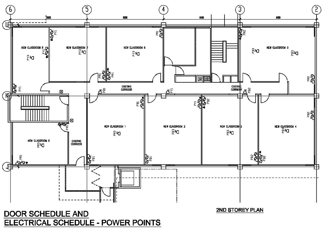
Electrical Classroom plan in DWG file
Home
Categories
Architecture
House Plan
Electrical Classroom plan in DWG file
Uploaded by:
Eiz
Luna
View Profile
View Profile
Description
Electrical Classroom plan in DWG file which includes the details of doors, earthing wire, light, switchboard, fuse, etc.
File Type:
DWG
File Size:
204 KB
Category::
Architecture
Sub Category::
House Plan
type:
Gold
Uploaded by:
Eiz
Luna
View Profile
Download
Add to libary
find Latest
Related
Files