2d CAD plan and sectional details of staircase drawings dwg file
Description
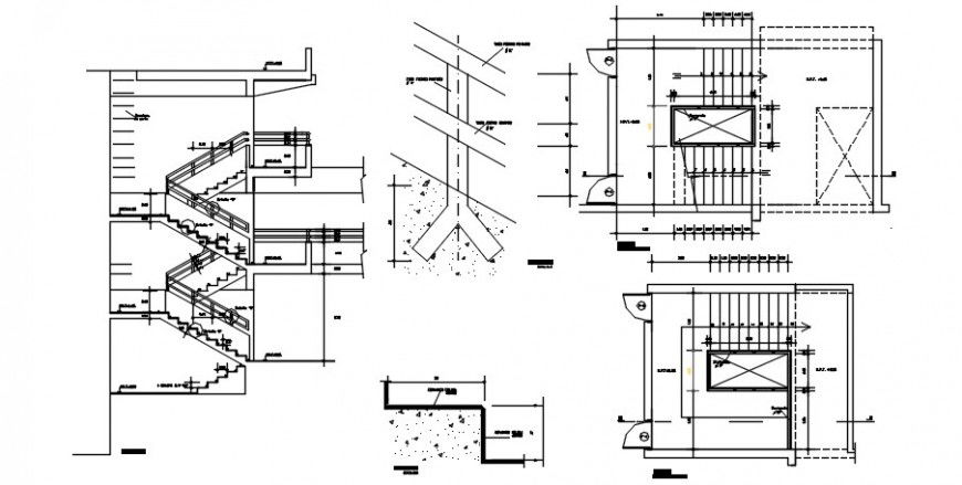
2d CAD plan and sectional details of staircase drawings dwg file that shows stairway plan details along with riser and tread dteials railing details. Riser height tread width section line and sectional details of stairway also included in drawings.
Uploaded by:
Eiz
Luna

