Restaurant With Commercial Centre
Description
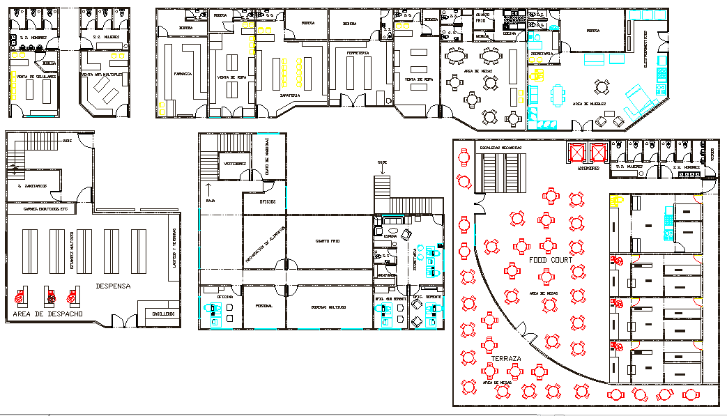
Commercial building plan dwg. Layout plan, elevation plan and section plan, including the restaurant ground floor architectonic antro, wide stage with seating area, bar and wide space of parking area. Restaurant With Commercial Centre Download file, Restaurant With Commercial Centre Design File.

Uploaded by:
Umar
Mehmood
