Foundation Detail
Description
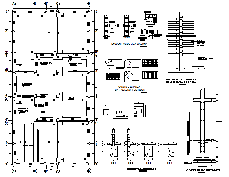
Foundation Detail DWG File. A foundation is the element of an architectural structure which connects it to the ground, and transfers loads from the structure to the ground.Foundation Detail Download DWG File.

Uploaded by:
Liam
White

