AutoCAD Cistern Tank Layout Showing Pump, Vent Stack, and Suction Pipe
Description
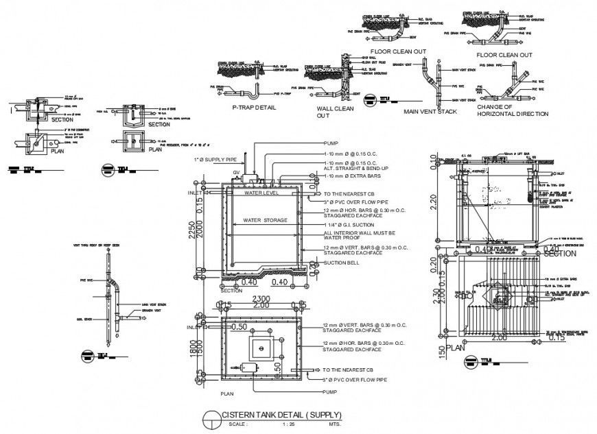
This AutoCAD DWG file illustrates a cistern tank layout for water supply and plumbing systems. It includes tank filling configuration, pump placement, wall and floor cleanouts, main vent stack, and suction pipe setup. The drawing ensures efficient water storage and distribution, making it ideal for residential and commercial projects. Architects, engineers, and construction planners can use this file for precise planning and seamless installation of cistern tanks.
Uploaded by:
Eiz
Luna
_autocad_software_23072019043812.jpg)
