Kitchen Design project
Description
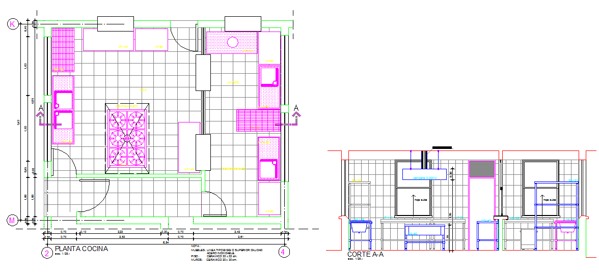
Layout plan of kitchen, section plan and all side elevation design with much more detailing about interior design of kitchen.Kitchen Design project Detail, Kitchen Design project DWG.

Uploaded by:
Fernando
Zapata

Uploaded by:
Zapata