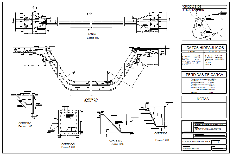
Structure Design
Description
This structure design Draw in autocad format.Built structures are broadly divided by their varying design approaches and standards, into categories including building structures, architectural structures, civil engineering structures and mechanical structures. Structure Design DWG , Structure Design detail.

Uploaded by:
Liam
White

