Layout plan multifamily residence dwg file
Description
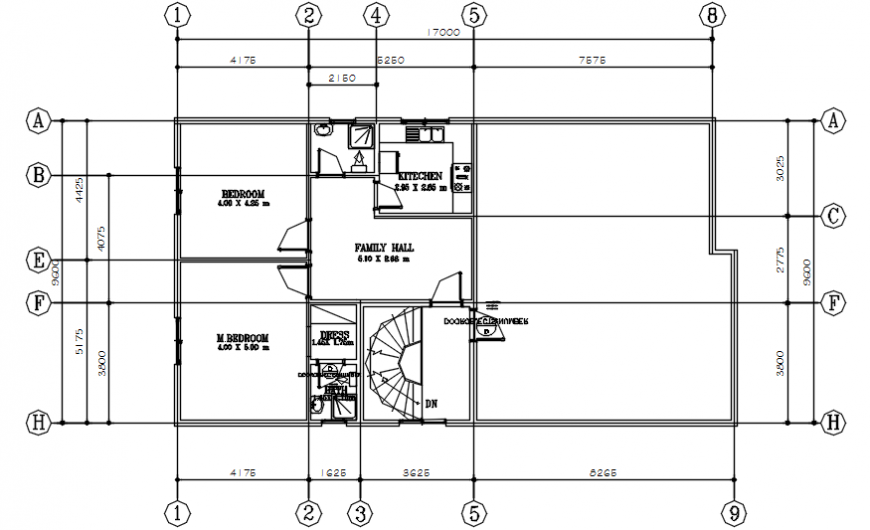
Find here layout of construction boundary, structure plan, staircase detail, dimension detail with description detail of multifamily residence project.
Uploaded by:
Eiz
Luna
Find here layout of construction boundary, structure plan, staircase detail, dimension detail with description detail of multifamily residence project.
Uploaded by:
Luna