Swimming pool top view details dwg file
Description
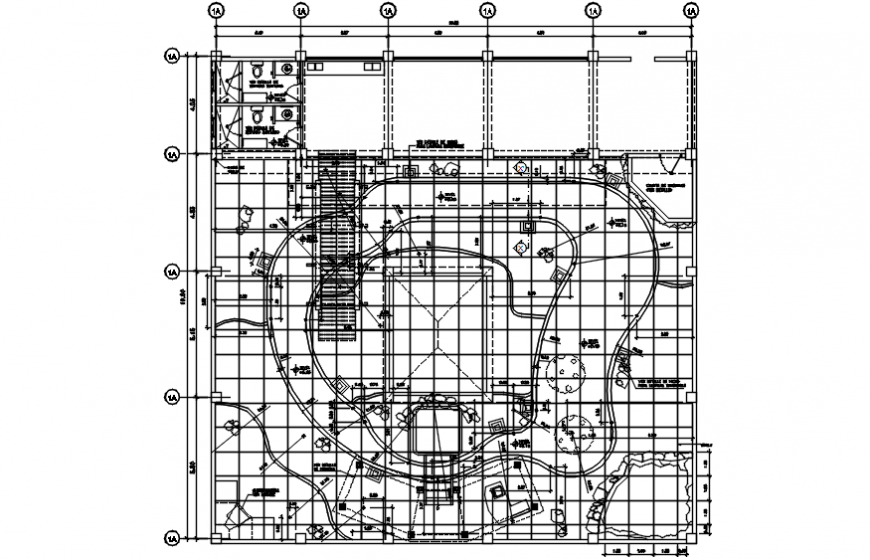
Swimming pool top view detail 2d. here there is top view 2d detail file with plumbing detail in auto cad format
File Type:
DWG
File Size:
2.6 MB
Category::
Dwg Cad Blocks
Sub Category::
Cad Logo And Symbol Block
type:
Gold
Uploaded by:
Eiz
Luna

