Septic Tank Design
Description
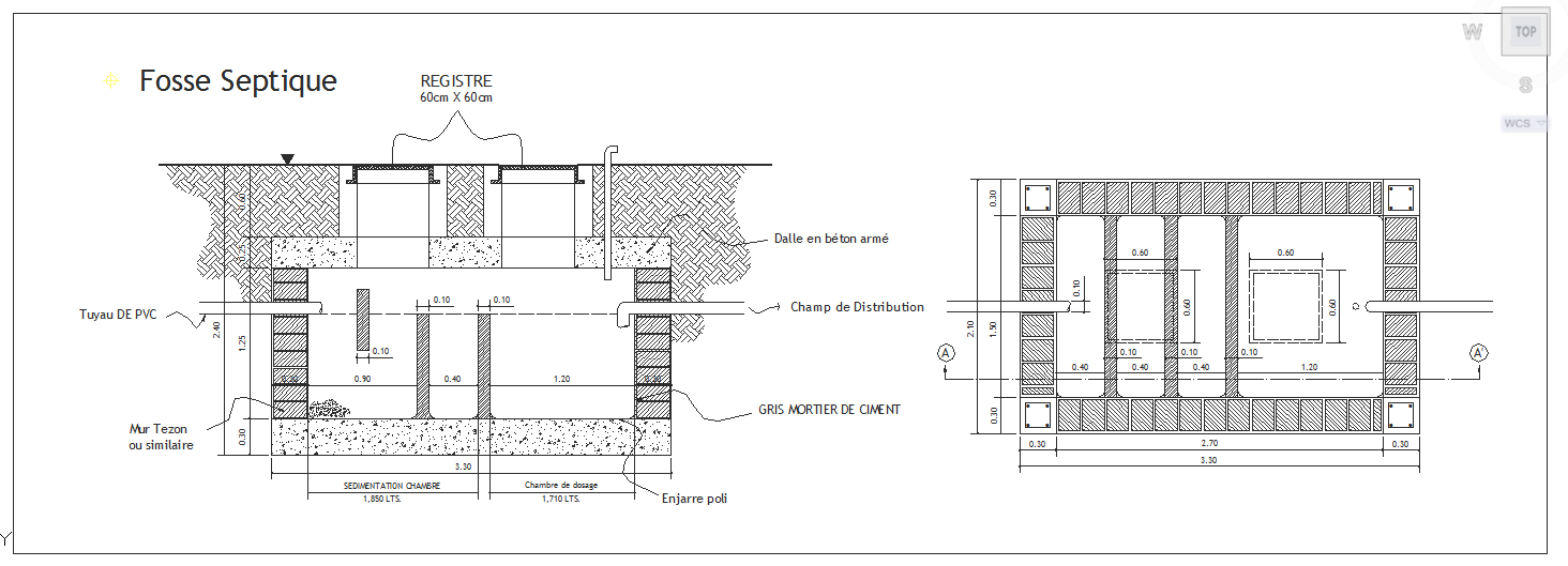
Septic Tank Design Download file. Wastewater enters the first chamber of the tank, allowing solids to settle and scum to float. Septic Tank Design DWG, Septic Tank Design Detail.

Uploaded by:
Jafania
Waxy

Uploaded by:
Waxy