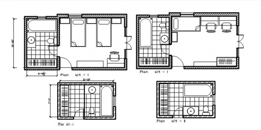
Bedroom and bathroom detail model
Description
Bedroom and bathroom detail model. here there is top view 2d model of single beds and bathroom details with all details in auto cad format
File Type:
DWG
File Size:
129 KB
Category::
Interior Design
Sub Category::
Bathroom Interior Design
type:
Gold
Uploaded by:
Eiz
Luna

