Construction detail
Description
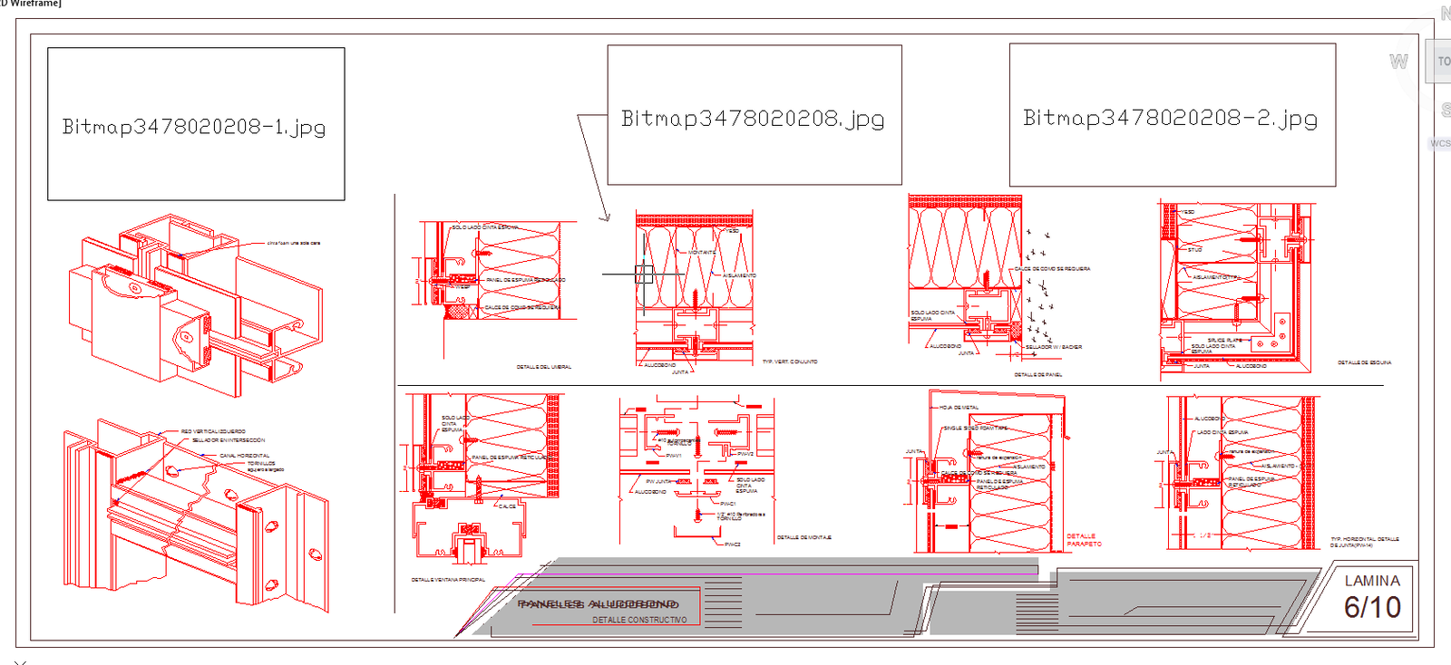
Construction detail DWG file. Building construction is usually further divided into residential and non-residential Infrastructure is often called heavy/highway, heavy civil or heavy engineering.Construction detail DWG File Download.

Uploaded by:
Jafania
Waxy

