Common Tank Design
Description
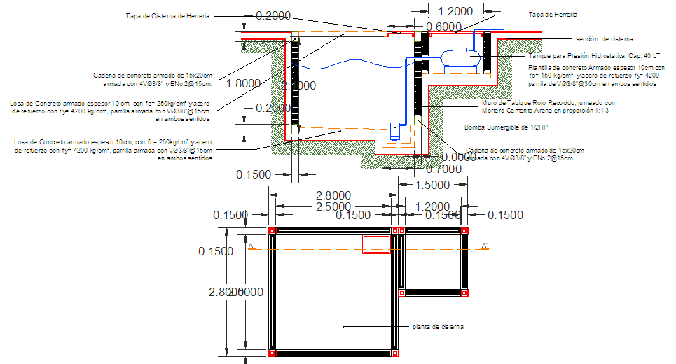
Common Tank Design DWG file. This usually involves building a building, or containment dike, around the tank, so that any leakage may be safely contained.Common Tank Design Download file

Uploaded by:
Jafania
Waxy

Uploaded by:
Waxy