Column and beam structure and construction details of kitchen dwg file
Description
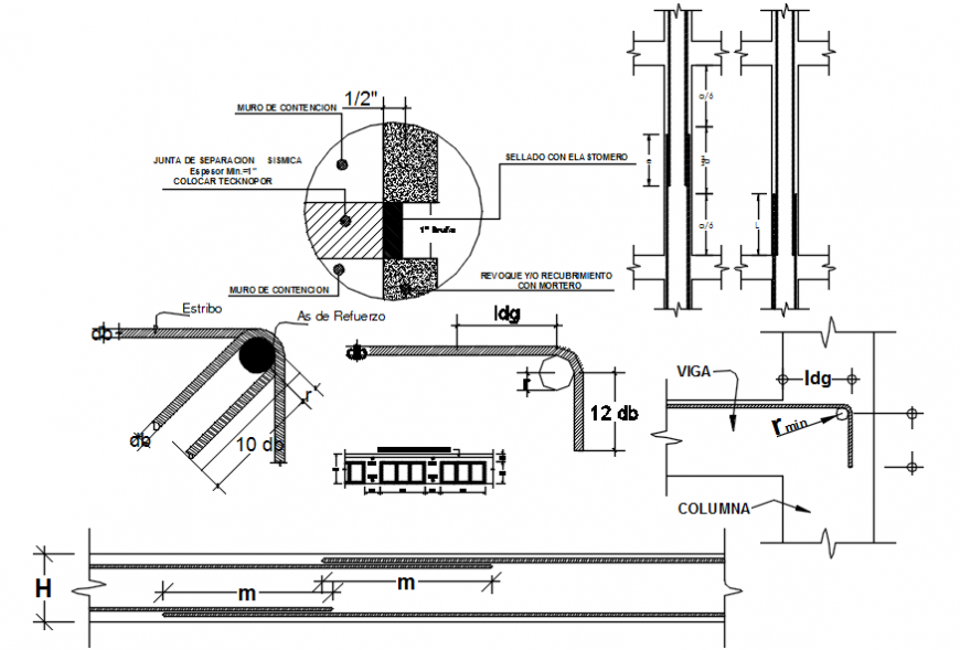
Column and beam structure and construction details of kitchen that includes a detailed view of typical transverse reinforcement details with typical splice location for column, details of beam reinforcement passing through column with column junction details with dimensions details and much more of column details.
File Type:
DWG
File Size:
1.5 MB
Category::
Construction
Sub Category::
Kitchen And Remodeling Details
type:
Gold
Uploaded by:
Eiz
Luna

