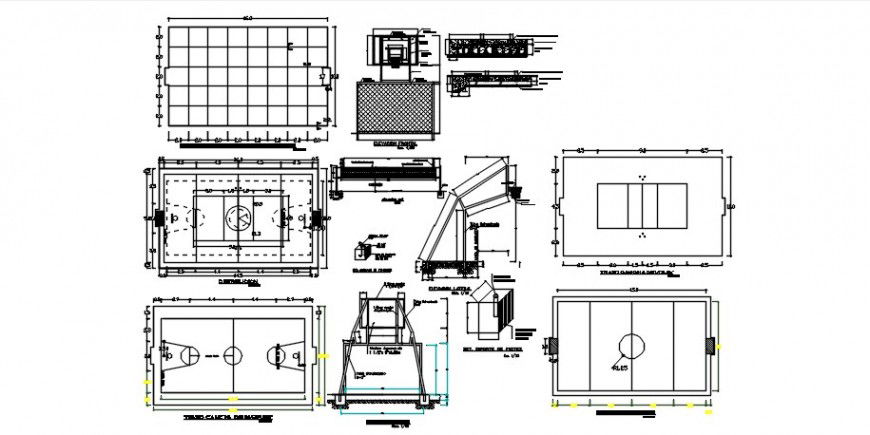
2d CAD drawings details of basketball playground plan dwg file
Description
2d CAD drawings details of basketball playground plan dwg file that shows basketball sports playground dteials along with ground markings and signs dteials and basketball net different sides of elevation also included in drawings.
Uploaded by:
Eiz
Luna

