Elevation of residential building dwg file
Description
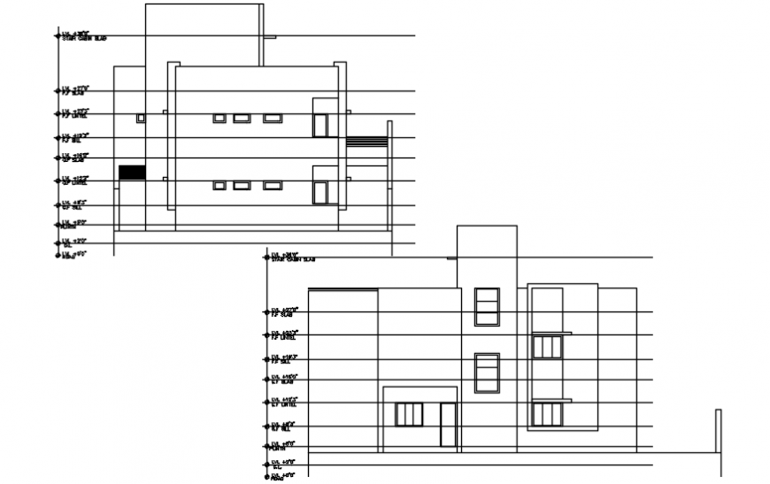
Autocad drawing of a residence elevations showing all the details including vertical dimensions of every elements, door-windows, chajja details, etc.
Uploaded by:
Eiz
Luna
Autocad drawing of a residence elevations showing all the details including vertical dimensions of every elements, door-windows, chajja details, etc.
Uploaded by:
Luna