Working plan of residential building cad file
Description
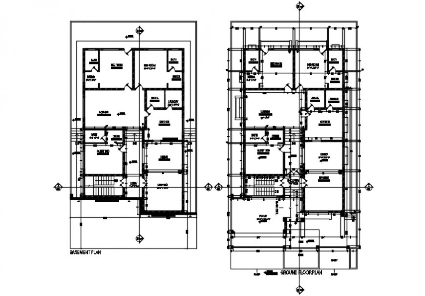
Autocad drawing of residence working plan showing details like area specification with their respective dimensions, wall thicknes with door-window openings, etc.
Uploaded by:
Eiz
Luna
Autocad drawing of residence working plan showing details like area specification with their respective dimensions, wall thicknes with door-window openings, etc.
Uploaded by:
Luna