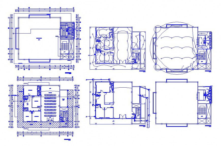
Office layout plan, electrical installation and structure cad drawing details dwg file
Description
Office layout plan, electrical installation and structure cad drawing details that includes a detailed view of reception area with waiting area and cabin and computer lab with counseling room and library and conference room details, manager cabin and meeting room, cleaning department with departmental office with power layout details and lighting layout details, computation and schedule of loads with general notes and specifications, panel board details and much more of office details.
Uploaded by:
Eiz
Luna

