2d cad drawing of furniture kitchen layout autocad software
Description
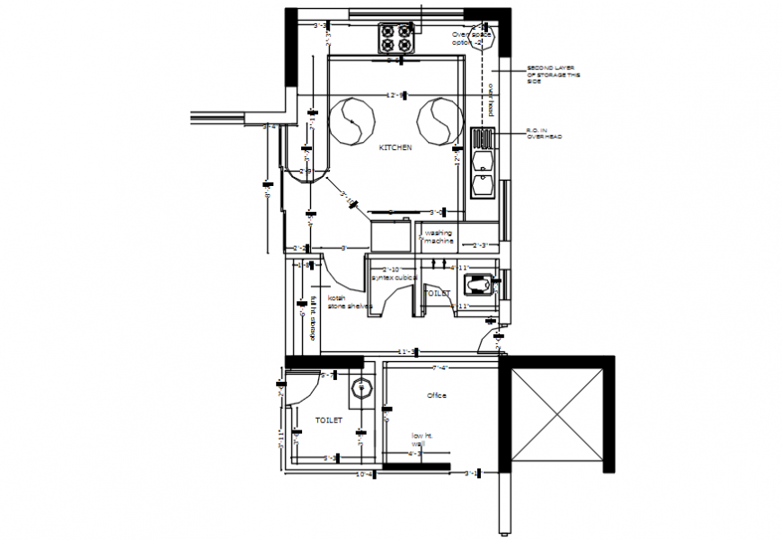
2d cad drawing of furniture layout AutoCAD software with an alternative option for the office. spacious store area with full height storage of kotah stone shelves with toilet attached and room for syntax cubical in the kitchen area and spacious kitchen waching machine area. two options for oven space been provided.over head cabinet been provided in kitchen. 3 slabs been provided in kitchen area with frigdge near washing machhine area. one of the kitchen slab with over head cabinet and curved at the end of slab.
Uploaded by:
Eiz
Luna

