Plan of kitchen furniture with detail in auto cad file
Description
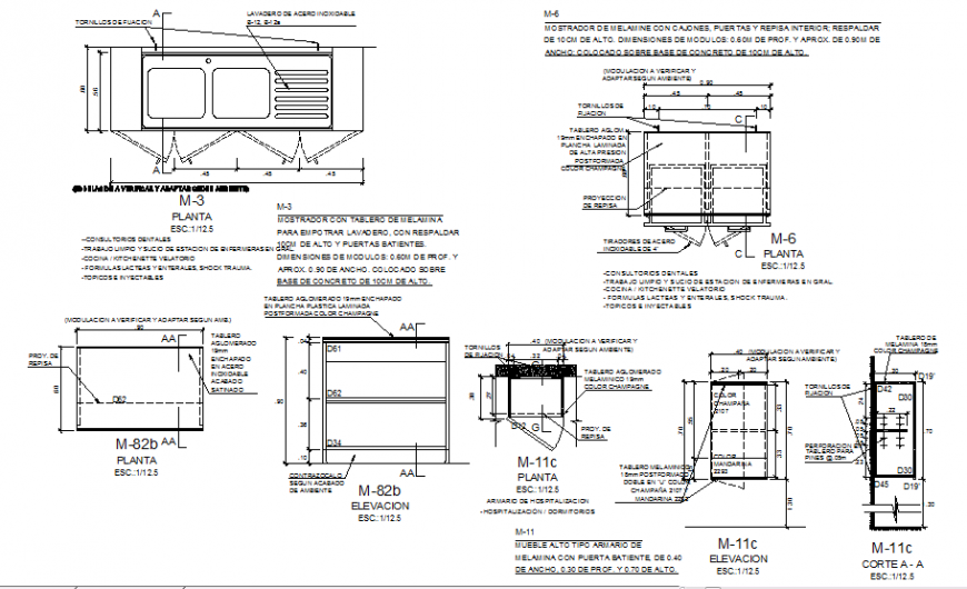
Plan of kitchen furniture with detail in auto cad file plan include detail of kitchen platform and door and laundry area with necessary detail and dimension.
Uploaded by:
Eiz
Luna
Plan of kitchen furniture with detail in auto cad file plan include detail of kitchen platform and door and laundry area with necessary detail and dimension.
Uploaded by:
Luna