Residential housing apartments drawings plan elevation and section in autocad
Description
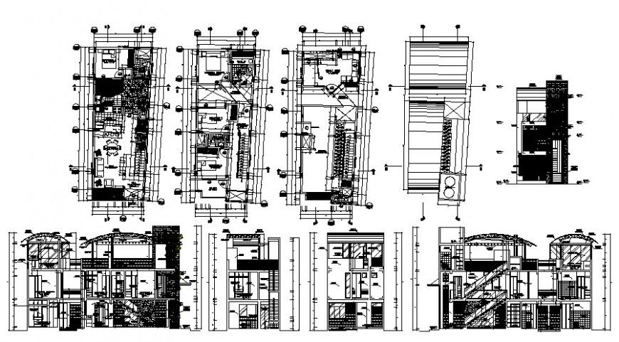
Residential housing apartments drawings plan elevation and section in autocad that shows work plan drawings of house with floor leevl details and house different sides of elevation and sectional details. Furniture layput plan details and dimension hidden line details along with house other units details are alos shown in drawing.
Uploaded by:
Eiz
Luna

