Residential two story bungalow drawings 2d view autocad file
Description
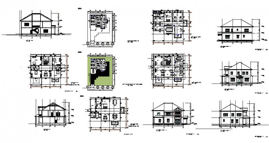
Residential two story bungalow drawings 2d view autocad file that shows residential house floor plan details with furniture blocks details and room dimension details. Floor level details and parking space details are also included in the drawing. House different sides elevation and sectional details are also included in the drawing.
Uploaded by:
Eiz
Luna

