Girder Bridge Detail
Description
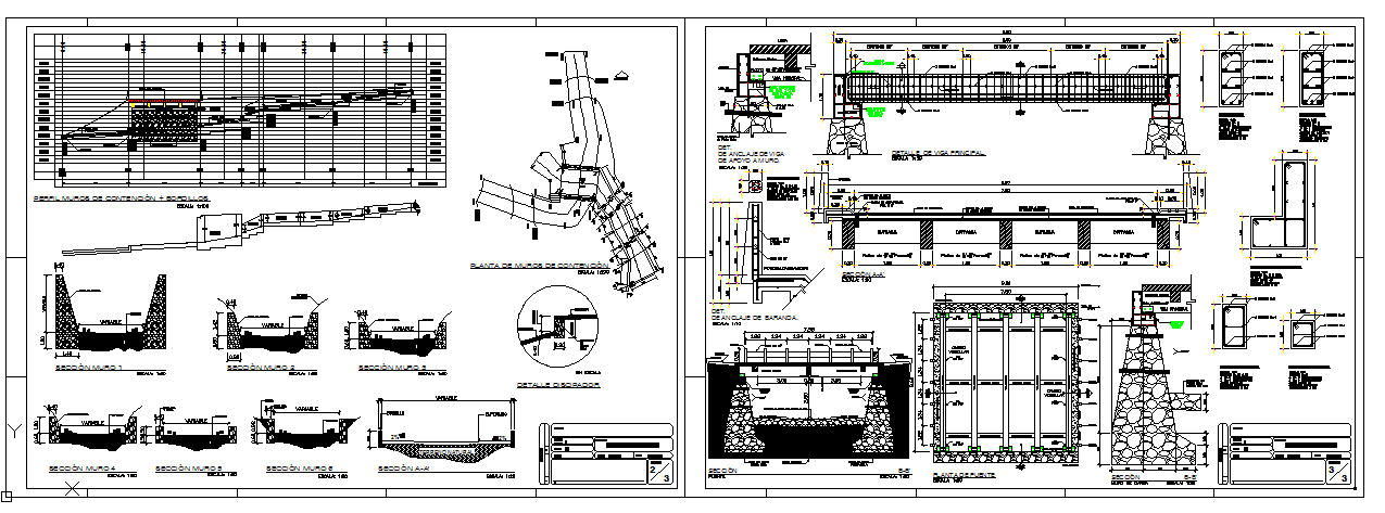
Girder Bridge Detail Design, Girder Bridge Detail Download file. A girder bridge, in general, is a bridge that utilizes girders as the means of supporting the deck.Girder Bridge Detail DWG File.

Uploaded by:
Fernando
Zapata
