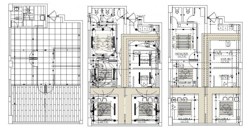
Framing plan and electrical installation drawing details for corporate office dwg file
Description
Framing plan and electrical installation drawing details for corporate office that includes a detailed view of reception area with waiting area and cabin and computer lab with counseling room and library and conference room details, manager cabin and meeting room, cleaning department with departmental office, smoking area with power layout details and lighting layout details, computation and schedule of loads with general notes and specifications and much more of office details.
Uploaded by:
Eiz
Luna

