Projects
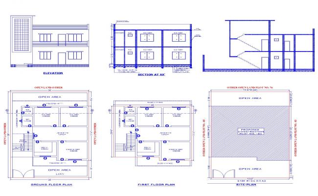
Comprehensive 45x60 Residential Floor Plan DWG for Modern Home
MORE DETAILS
Residential Submission drawing