House staircases section and constructive structure cad drawing details dwg file
Description
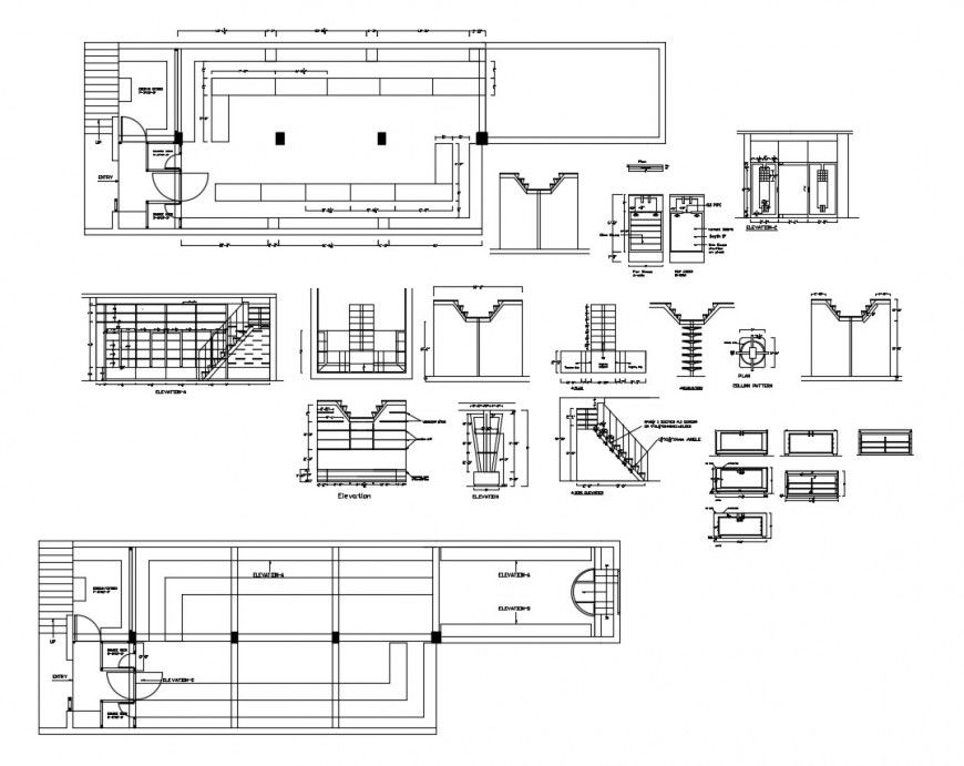
House staircases section and constructive structure cad drawing details that includes a detailed view of flooring view with doors and windows view and staircase view details, balcony view with wall design with house front sectional view with main stairways, stairways sectional view of drawing room to floor, terrace stairways, doors and windows view, dimensions view, supportive pillar view and much more of house details.

Uploaded by:
Eiz
Luna

