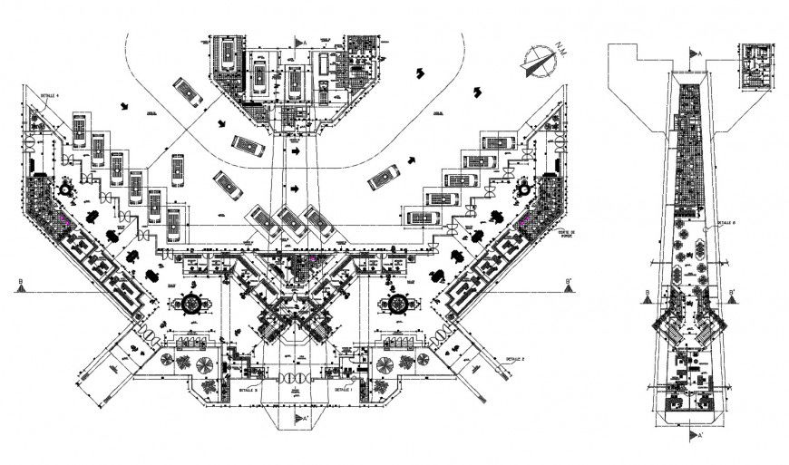
Bus terminal with shopping center architecture layout plan cad drawing details dwg file
Description
Bus terminal with shopping center architecture layout plan cad drawing details that includes a detailed view of bus stop marks, indoor roads with multi-purpose departments like loading and transportation trucks parking area, shops and showrooms, elevators and food stores and hotels and restaurants, retail markets sanitary facilities of all floors of male and female with spa centers and horror house and much more of bus terminal building details.

Uploaded by:
Eiz
Luna

