Hospital floor plan and structure cad drawing details dwg file
Description
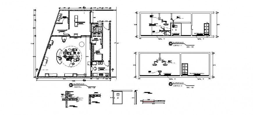
Hospital floor plan and structure cad drawing details that includes a detailed view of reception area and waiting area with consultant room details specialized departments, operation theater and cleaning departments details pharmacy stores with with layer- wall core polystyrene base material thickness of layer-3 of wall of to the base of concrete of thickness and concrete chain and much more of hospital details.

Uploaded by:
Eiz
Luna

