Medical departments and furniture blocks cad drawing details dwg file
Description
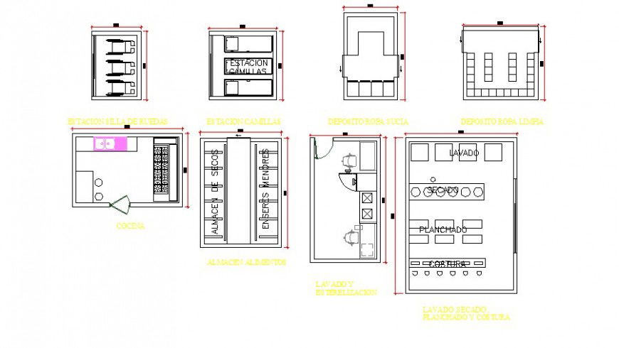
Medical departments and furniture blocks cad drawing details that include a detailed view of multiple medical types of furniture like cabinet elevation, stretchers, patient chairs, tables, human blocks etc with colours details and size details, carpentry and type details etc medical plans with furniture block for multi purpose uses for cad projects.

Uploaded by:
Eiz
Luna

