House PLan Lay-out & Plinth area detail
Description
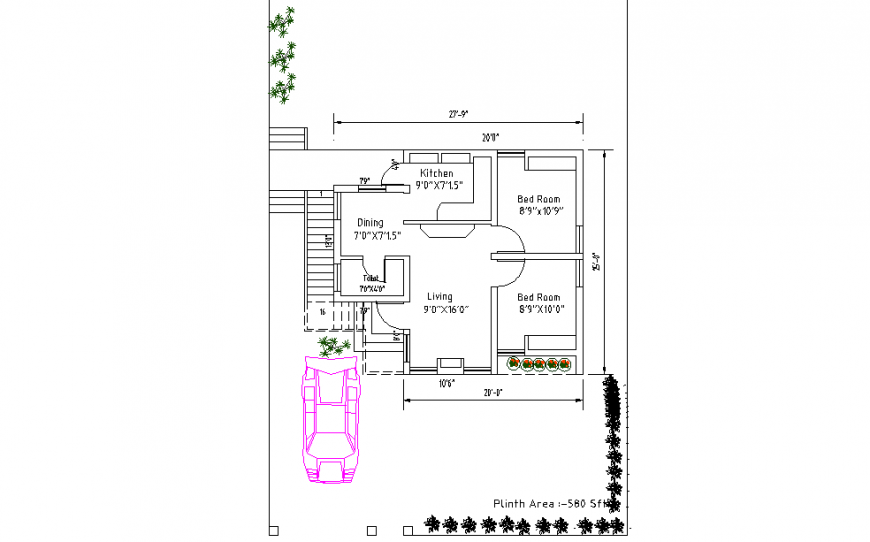
House PLan Lay-out & Plinth area detail Download, Plinth Area :-580 Sft., House plan lay-out detail, & Stair Detail & Plan Lay-out design.
Uploaded by:
Eiz
Luna
House PLan Lay-out & Plinth area detail Download, Plinth Area :-580 Sft., House plan lay-out detail, & Stair Detail & Plan Lay-out design.
Uploaded by:
Luna