Villa two-level floor plan and foundation plan cad drawing details dwg file
Description
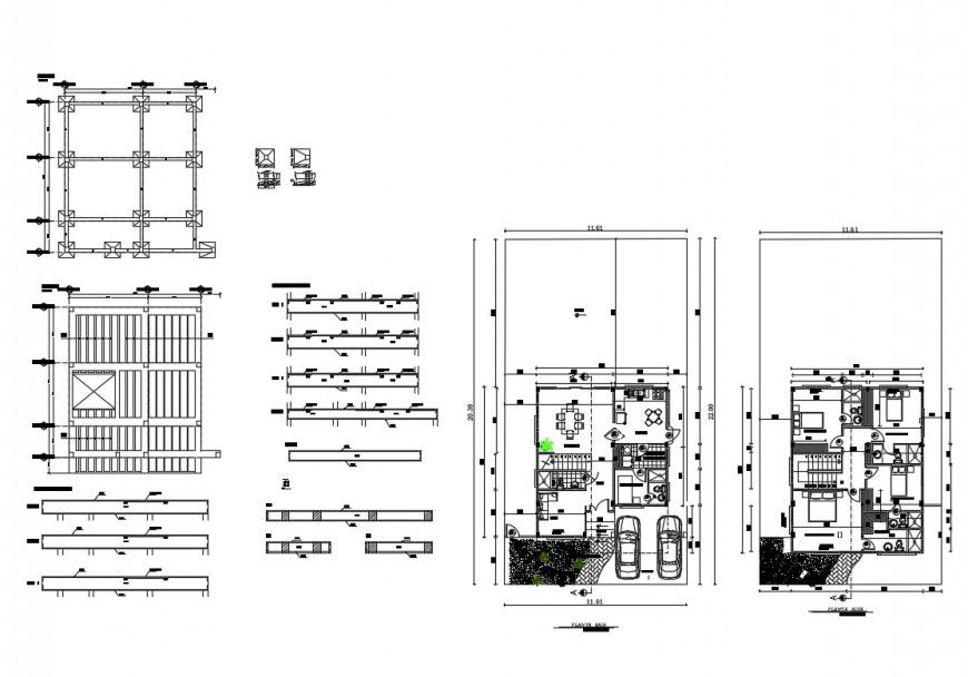
Villa two-level floor plan and foundation plan cad drawing details that includes a detailed view of the foundation, side typical shoe, typical central shoe, columns, foundations, shoes, cistern tank, walls of concr. arm., beams flat, peralted beams, foundation beams, (cement: sand: crushed stone), typical detail of reinforcement and ended of walls of masonry with main entry house door, drawing room, living room, family hall, kitchen, dining area, corridor, passage, dimensions, indoor staircases, laundry area, balcony, bedroom, master bedroom, toilets and bathroom, indoor doors, furniture details and much more of villa project.

Uploaded by:
Eiz
Luna

