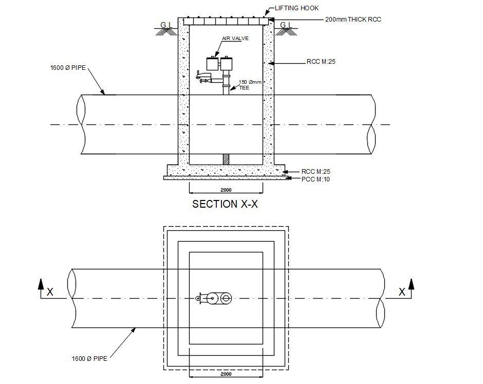
AIR VALVE CHAMBER
Description
AIR VALVE CHAMBER
The air valve chamber is a sectionalized structure designed and developed to provide the industry with a high quality, accurate and
long lasting method of erecting chambers. Incorporating specially designed step irons, the chambers are easy to install, can be
made watertight and can be erected in hours rather than days.
Uploaded by:
kaushal
solanki

