LOGIN
HOME
CATEGORIES
UPLOAD FILE
PRICING
HOUSE PLAN
ABOUT US
CONTACT US
Tiny House Plans CAD File
Home
Categories
Architecture
House Plan
Tiny House Plans CAD File
Uploaded by:
Priyanka
Patel
View Profile
View Profile
Description
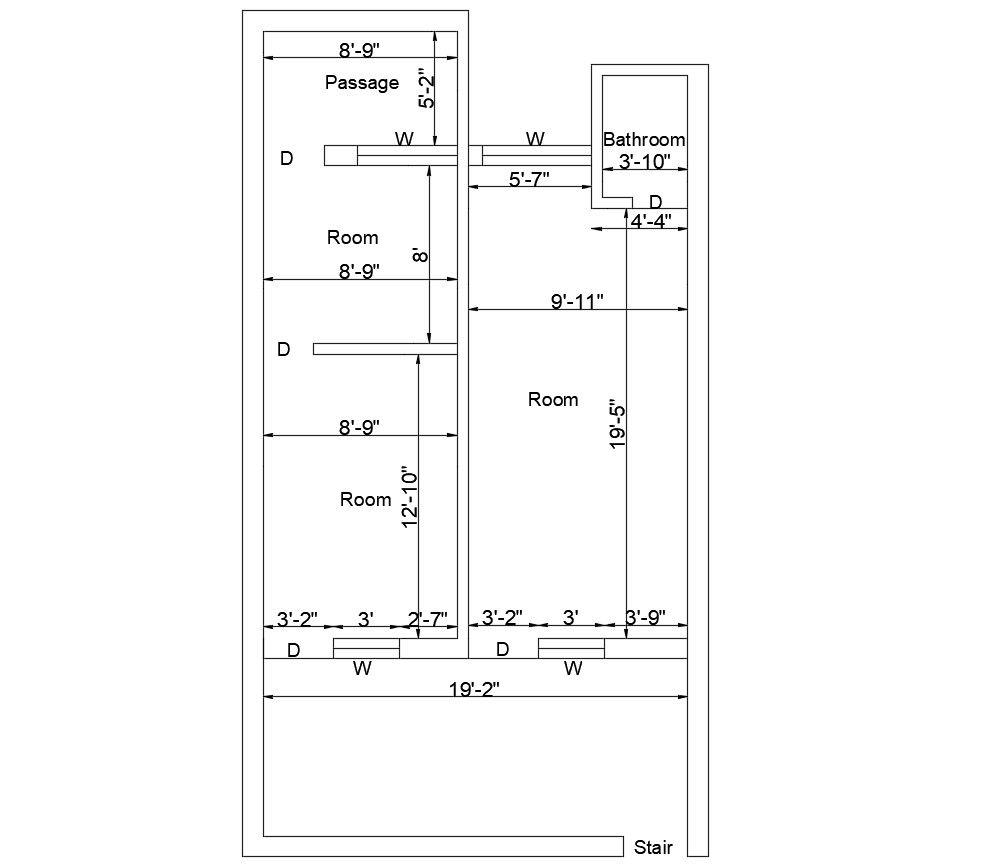
Download housing project design plan which shows house floor plan details along with room details and room dimension details.
File Type:
DWG
File Size:
481 KB
Category::
Architecture
Sub Category::
House Plan
type:
Gold
Uploaded by:
Priyanka
Patel
View Profile
Download
Add to libary
find Latest
Related
Files