Plan and elevation of museum of modern art design dwg file
Description
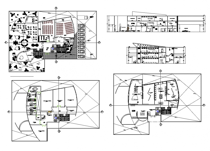
Plan and elevation of museum of modern art design dwg file in plan with detail of parking area,office area,dining and washing area detail and detail of museum area with auditorium and area of modern art and elevation with wall and wall support area and stair and support detail in design.
File Type:
DWG
File Size:
714 KB
Category::
Urban Design
Sub Category::
Architecture Urban Projects
type:
Gold
Uploaded by:
Eiz
Luna

