Structural detail with architectural plan detailing dwg file
Description
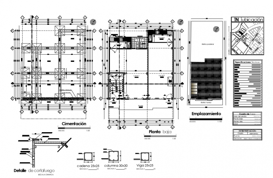
Structural detail with architectural plan detailing dwg file, bathroom layout plan detailing is shown, with pillar detailing etc in dwg forma
Uploaded by:
Eiz
Luna
Structural detail with architectural plan detailing dwg file, bathroom layout plan detailing is shown, with pillar detailing etc in dwg forma
Uploaded by:
Luna