Under ground water tank drawing in dwg file.
Description
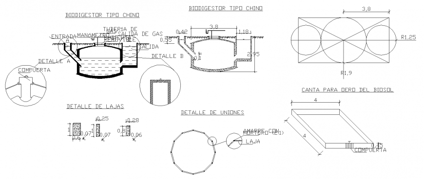
Underground water tank drawing in dwg file. detail drawing of Underground water tank, plan, section, 3d view, joinery details, description details and etc .
Uploaded by:
Eiz
Luna
Underground water tank drawing in dwg file. detail drawing of Underground water tank, plan, section, 3d view, joinery details, description details and etc .
Uploaded by:
Luna