Facade and back sectional details of auditorium hall dwg file
Description
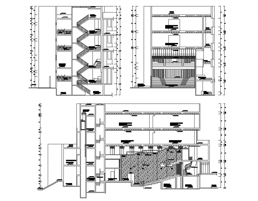
Facade and back sectional details of auditorium hall that includes a detailed view of flooring view, doors and windows view, staircase sectional details, balcony view, wall sections and dimensions details, basement car parking floor, tree view, wall design, performance hall, cultural hall, furniture details and much more of auditorium hall project.
Uploaded by:
Eiz
Luna

