Kitchen sections and plan details with electrical legends dwg file
Description
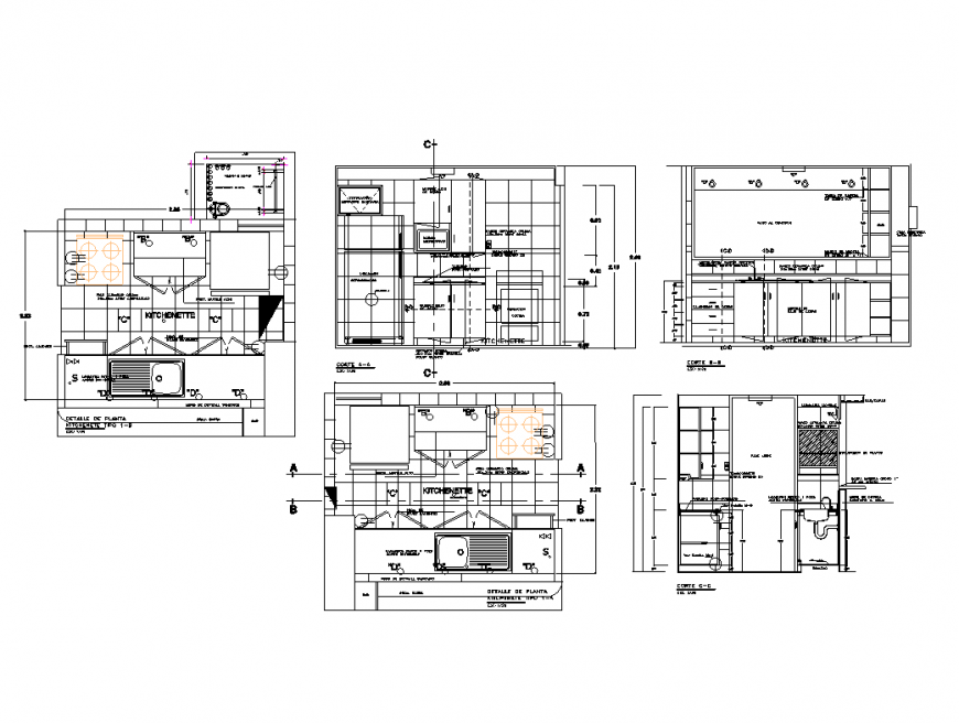
Kitchen sections and plan details with electrical legends that includes a detailed view of all sided sectional details with structure, interior details, equipment details, electrical layout plan details, cutting cd-cd typical cajonera detail, ad-ad cut default default, cut dd-dd typical detail of sandwich with laundry, ceramic twilight series, stainless steel laundry, post-formed board, chrome handles, sheet leaf of melamine galaxia cedro, painted wooden board and much more of kitchen details.
Uploaded by:
Eiz
Luna

