Office building elevation, layout plan and auto-cad details dwg file
Description
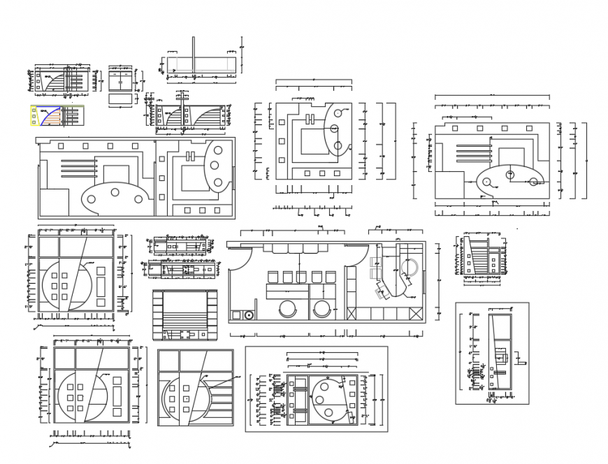
Office building elevation, layout plan and auto-cad details that includes a detailed view of flooring view, doors and windows view, staircase view, balcony view, wall design, dimensions, roof or terrace view with reception area, waiting area, cabin, bottom false ceiling, computer lab, bottom of grid ceiling, counselling room and library, conference room, manager cabin, meeting room, cleaning department, departmental office, smoking area, head offices, accountant rooms, pantry and much more of office project.
Uploaded by:
Eiz
Luna

