Construction column detail cad drawing
Description
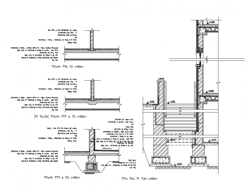
Construction column detail cad drawing dwg file. Drawing labels, details, and other text information extracted from the CAD file
Uploaded by:
Eiz
Luna
Construction column detail cad drawing dwg file. Drawing labels, details, and other text information extracted from the CAD file
Uploaded by:
Luna