Plan, section and elevation of house building structure layout autocad file
Description
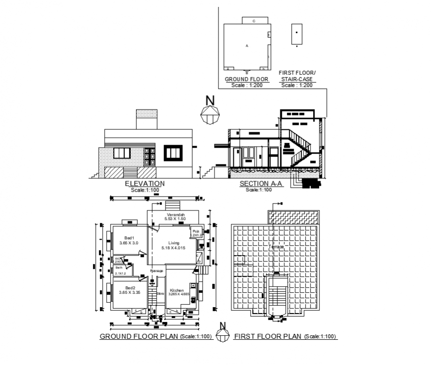
Plan, section and elevation of house building structure layout autocad file, wall and flooring detail, scale 1:100 detail, staircase detail, ground floor plan detail, bedroom detail, living room detail, sanitary toilet and bathroom detail, room dimension detail, dimension detail, floor level detail, front elevation detail, scale 1:100 detail, staircase detail, section A-A detail, plan view detail, etc.
Uploaded by:
Eiz
Luna

