Primary school design site plan drawing in dwg file.
Description
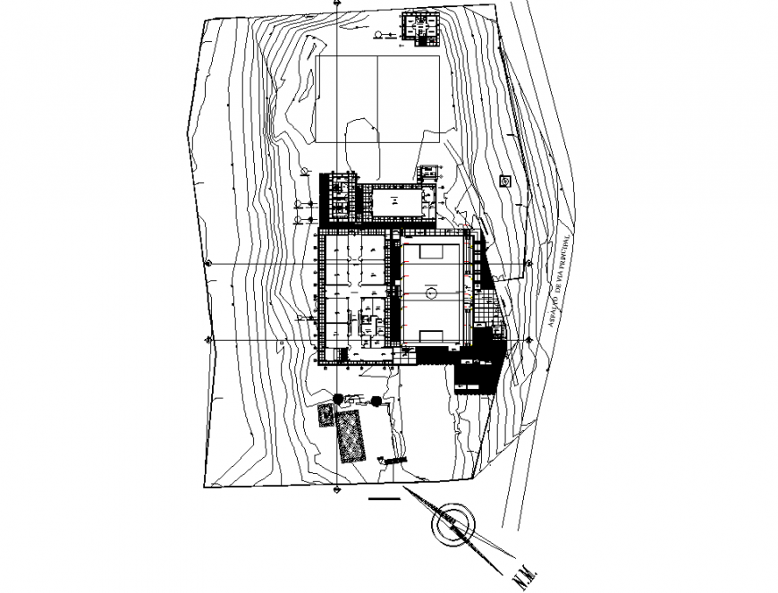
Primary school design site plan drawing in dwg file. detail drawing of primary school, site map with contour details, play ground area details, and etc details.
Uploaded by:
Eiz
Luna
Primary school design site plan drawing in dwg file. detail drawing of primary school, site map with contour details, play ground area details, and etc details.
Uploaded by:
Luna