Modern Bungalow House Plans In DWG File

Modern Bungalow House Plans In DWG File
Profile

Uploaded by:

helly

panchal

Description
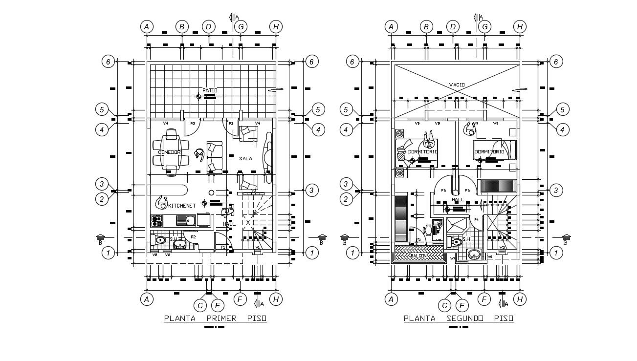
Modern Bungalow House Plans In DWG File in a elevation plan, layout plan, DETAIL OUT WATER AND DRAINAGE, Hot water outlet Modern Bungalow House Plans In DWG File
Profile

Uploaded by:

helly

panchal

find Latest

Related Files

WhatsApp Chat