LOGIN
HOME
CATEGORIES
UPLOAD FILE
PRICING
HOUSE PLAN
ABOUT US
CONTACT US
House layout
Home
Categories
Architecture
House Plan
House layout
Uploaded by:
helly
panchal
View Profile
View Profile
Description
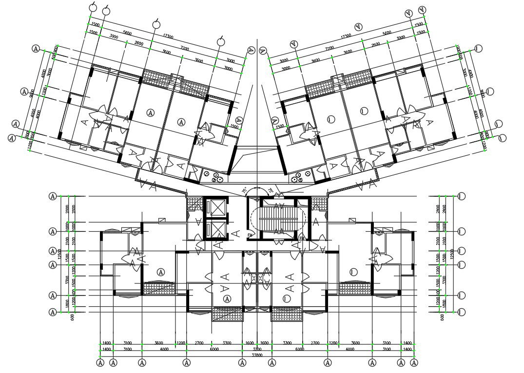
House layout details in a two bedroom, living room, dining room, ground floor, first floor plan, House layout details dwg file, House layout design draw in autocad format.
File Type:
Autocad
File Size:
117 KB
Category::
Architecture
Sub Category::
House Plan
type:
Free
Uploaded by:
helly
panchal
View Profile
Download
Add to libary
find Latest
Related
Files