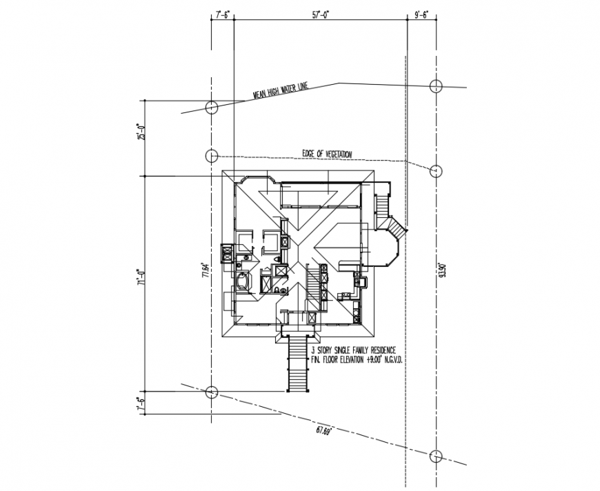
Three story single family residence first floor layout plan details dwg file
Description
Three story single family residence first floor layout plan details that includes a detailed view of main entry house door, drawing room, living room, family hall, kitchen, dining area, indoor staircases, laundry area, balcony, bedroom, master bedroom, toilets and bathroom, indoor doors, furniture details and much more of house floor plan.
Uploaded by:
Eiz
Luna

