Foundation garage plan
Description
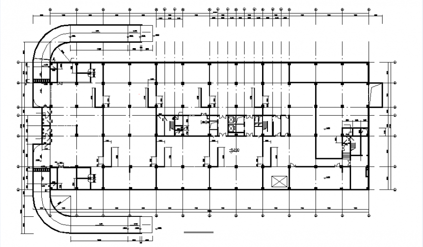
Foundation garage plan, dimension detail, naming detail, furniture detail in door and window detail, cut put detail, centre line plan detail, stair detail, etc.
Uploaded by:
Eiz
Luna
Foundation garage plan, dimension detail, naming detail, furniture detail in door and window detail, cut put detail, centre line plan detail, stair detail, etc.
Uploaded by:
Luna