LOGIN
HOME
CATEGORIES
UPLOAD FILE
PRICING
HOUSE PLAN
ABOUT US
CONTACT US
Museum Plan In DWG File
Home
Categories
Architecture
Historical Building
Museum Plan In DWG File
Uploaded by:
helly
panchal
View Profile
View Profile
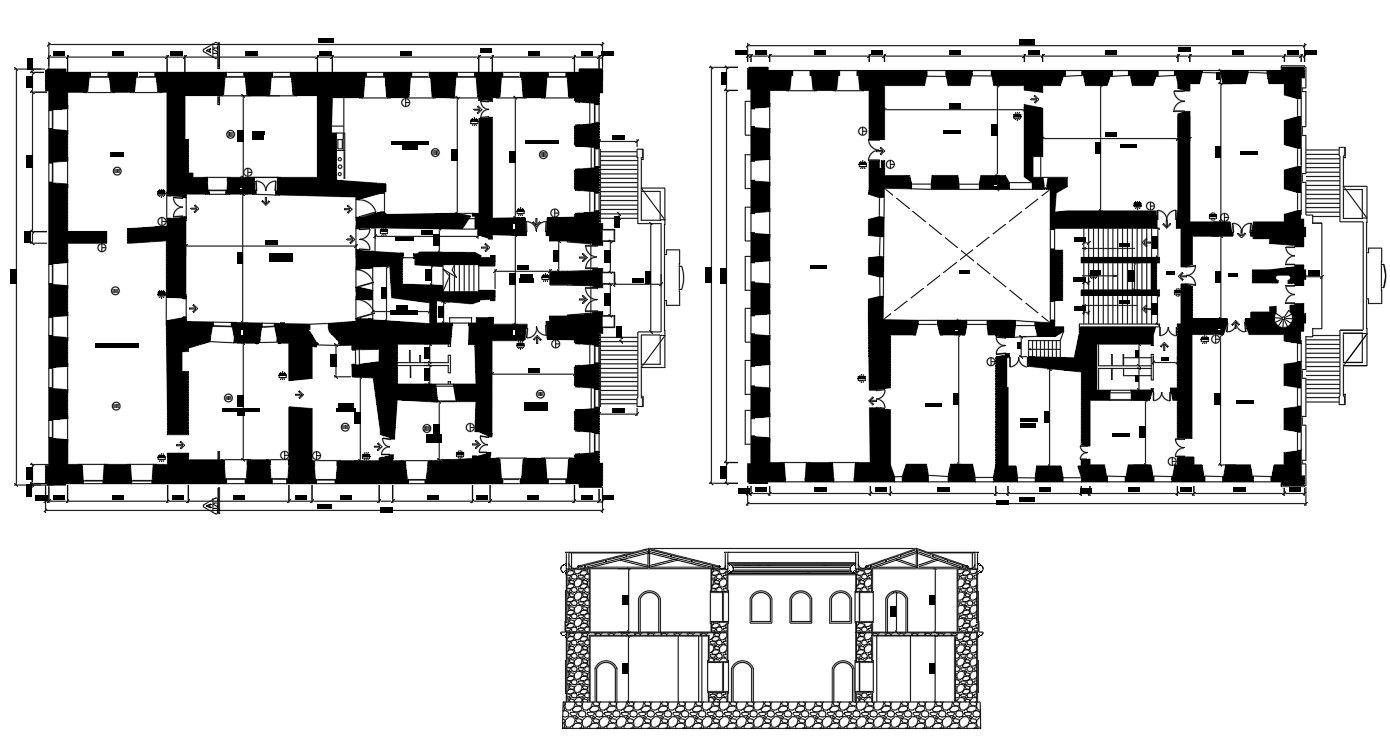
Description
Museum Plan In DWG File which shows the layout of Aleijadinho room, Inner courtyard, Entrance hall, It also includes elevation of the museum with foundation detail.
File Type:
Autocad
File Size:
1.6 MB
Category::
Architecture
Sub Category::
Historical Building
type:
Gold
Uploaded by:
helly
panchal
View Profile
Download
Add to libary
find Latest
Related
Files