LOGIN
HOME
CATEGORIES
UPLOAD FILE
PRICING
HOUSE PLAN
ABOUT US
CONTACT US
Aluminium openings Section details
Home
Categories
Dwg Cad Blocks
Aluminium Frame
Aluminium openings Section details
Uploaded by:
Priyanka
Patel
View Profile
View Profile
Description
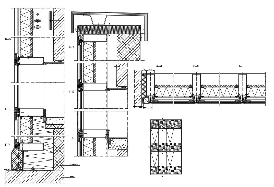
Two Side Frame And PAnel Joint With Door Design, And Section Frame Detail With Diamension.
File Type:
3d max
File Size:
338 KB
Category::
Dwg Cad Blocks
Sub Category::
Aluminium Frame
type:
Free
Uploaded by:
Priyanka
Patel
View Profile
Download
Add to libary
find Latest
Related
Files