Hydro Sanitary details
Description
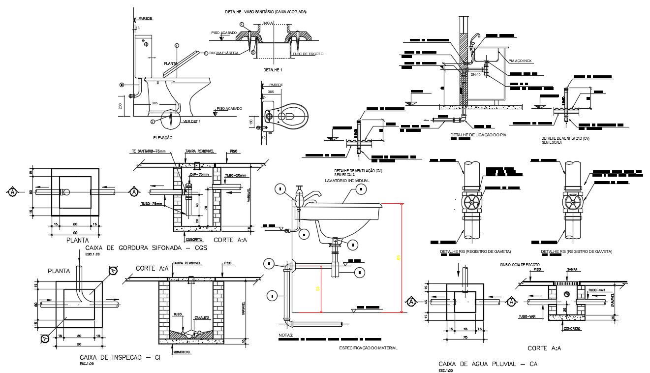
Sanitary detail. Sleeve plastic materials, Basin Sanitary, Sink Individual, etc detail include.
File Type:
Autocad
File Size:
333 KB
Category::
Dwg Cad Blocks
Sub Category::
Sanitary Ware Cad Block
type:
Free
Uploaded by:
Priyanka
Patel
